Trong thiết kế nhà phố hiện đại, phong thủy ngày càng được các gia chủ quan tâm bởi nó ảnh hưởng trực tiếp đến tài vận, sức khỏe, công danh và hạnh phúc gia đình.
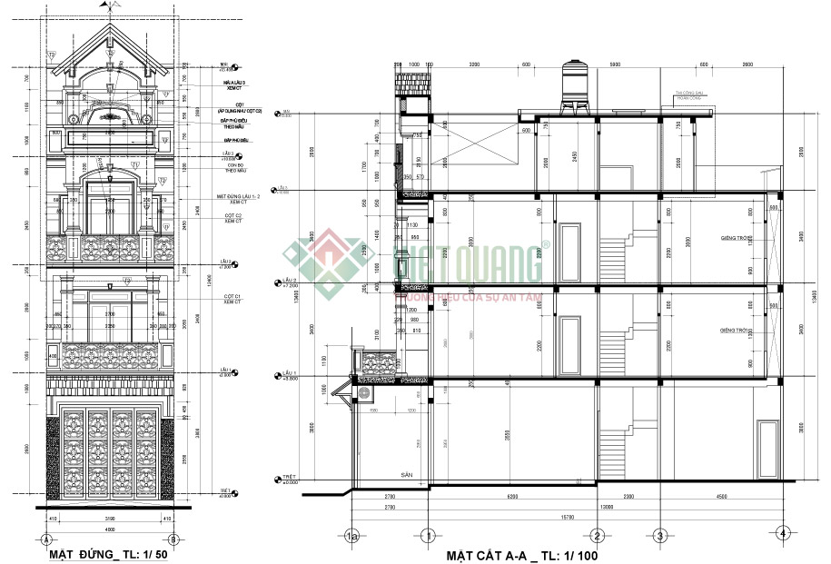
Mẫu nhà phố 4 tầng diện tích 4x16m của anh Sơn tại Quận 12 do Việt Quang Group thiết kế, không chỉ đẹp về hình khối kiến trúc mà còn đạt nhiều tiêu chuẩn phong thủy quan trọng.
Việt Quang Group – hotline 096 1993 915 luôn xem phong thủy là một phần không thể thiếu trong mỗi công trình, đảm bảo mỗi thiết kế vừa đúng kỹ thuật, vừa đem lại năng lượng tích cực cho chủ nhà.
1. Tổng quan phong thủy của công trình – Nhà phố 4 tầng dáng cân bằng, tài khí vững
Ngay khi nhìn vào tổng thể mẫu nhà 4 tầng này, có thể nhận thấy:
- Hình khối kiến trúc vững chãi
- Ban công ba tầng xen kẽ tạo nhịp âm dương hài hòa
- Mái vòm truyền thống tượng trưng cho sự che chở
- Hệ lan can hoa văn mang ý nghĩa vượng khí
Sự kết hợp này tạo ra thế “trên tụ dưới thoáng”, một bố cục rất tốt trong phong thủy nhà phố.
Tỷ lệ 4x16m – dạng đất “nở hậu phong thủy”
Dù mặt tiền hẹp, chiều sâu dài giúp:
- Tích tụ khí tốt
- Nhà không bị xộc gió
- Dòng năng lượng di chuyển chậm rãi, ổn định
Đây là một dạng thế đất được đánh giá cao vì dễ bố trí công năng và mang lại cảm giác ấm cúng – điều rất cần trong nhà phố ống.
2. Phong thủy mặt tiền – Tụ phúc, giữ khí, thu tài
Mặt tiền là nơi dẫn khí vào nhà, quyết định rất lớn đến năng lượng phong thủy.
Các yếu tố phong thủy tốt ở mặt tiền nhà anh Sơn:
- Mái chữ A trước cửa – tượng trưng cho sự bảo hộ, tạo bóng mát và dẫn khí xuống nhẹ nhàng.
- Hai trụ cột trắng lớn nâng đỡ ban công tầng một – mang ý nghĩa “song trụ đỡ vận”, giúp gia đạo vững bền.
- Lan can hoa văn đối xứng – biểu tượng của sự hòa hợp âm dương.
- Hệ cây xanh rủ xuống – tạo dòng khí mềm mại, tránh xung khí từ đường.
- Cổng sắt hoa văn kín đáo – giúp nhà giữ được tài khí, tránh thất thoát.
Phong thủy mặt tiền như vậy rất hợp với người kinh doanh hoặc người muốn ổn định tài chính lâu dài.
3. Ánh sáng – gió – cây xanh: Bộ tam quan trọng trong nhà phố
Nhà phố 4x16m dễ bị bí khí nếu không xử lý tốt.
Ở mẫu nhà của anh Sơn, Việt Quang Group đã xử lý rất chuẩn mực:
a. Ánh sáng tự nhiên
- Ba tầng liên tiếp có cửa ban công
- Tỷ lệ kính hợp lý
- Ánh sáng dẫn vào nhà theo tầng bậc, không gây chói
Theo phong thủy, ánh sáng đều – không gắt – giúp tinh thần gia chủ minh mẫn, sức khỏe ổn định.
b. Thông gió
- Ban công trước rộng
- Giếng trời phía sau hoặc giữa nhà
- Mái thông thoáng
Điều này tạo nên sự lưu thông khí liên tục, tránh bí khí – yếu tố hay gặp ở nhà ống.
c. Mảng xanh
- Tầng 1: cây dạng thấp
- Tầng 2: dây leo rủ xuống
- Tầng 3: cây bụi
- Tầng tum: cây tán rộng
Cây xanh đặt đúng tầng đúng vị trí giúp cân bằng âm dương, xoa dịu năng lượng xấu, thu hút vượng khí.
4. Mái nhà – Nơi giữ nguyên khí, cân bằng âm dương
Mái là nơi hấp thụ năng lượng trời đất, ảnh hưởng trực tiếp đến sức khỏe gia chủ.
Mẫu nhà này có:
- Mái nhỏ trước ban công tầng cao nhất – giữ khí
- Mái lớn sau lùi vào – cân bằng
- Khoảng mở tumb tạo thiên không – giúp khí xấu thoát ra
Sự kết hợp này tạo thế “thiên địa khai thông”, rất tốt cho người làm ăn, người làm công việc trí óc hoặc gia đình muốn cuộc sống bình an.
5. Công năng bên trong – Bố trí thuận phong thủy
Với kích thước 4x16m, công năng tiêu chuẩn theo phong thủy của Việt Quang Group thường là:
Tầng trệt
- Phòng khách sáng sủa, nhìn ra cổng
- Cầu thang nép bên hông – tránh cắt đôi nhà
- Bếp đặt cuối – tượng trưng “hậu phương vững”
- Không đặt bếp đối diện cửa chính
Tầng 1–2
- Phòng ngủ bố trí hai bên, có cửa sổ
- WC không đặt giữa nhà
- Hạn chế đặt giường dưới dầm
Tầng tum
- Khu giặt phơi
- Có thể làm phòng thờ theo tuổi gia chủ
Cách bố trí này giúp ngôi nhà:
- Đủ ánh sáng
- Khí lưu chuyển đều
- Không có góc tù bí
- Giữ được mạch khí từ trước ra sau
6. Phân tích phong thủy theo tuổi gia chủ (tổng quát, không xung đột tuổi)
Dù chưa biết tuổi cụ thể của anh Sơn, mẫu nhà này phù hợp đa số các gia chủ vì:
a. Hướng nhà trung tính
Các bố cục đối xứng, nhiều mảng đón sáng giúp dễ điều chỉnh theo từng cung mệnh.
b. Màu sắc hợp nhiều bản mệnh
Trắng, kem, xanh lá, đen nhạt – là những màu tương thích với đa số cung mệnh.
c. Lan can và hoa văn uốn cong
Hợp gia chủ mệnh Kim, Thủy và Mộc.
d. Mái chữ A
Tốt cho mệnh Thổ và Hỏa.
7. Công trình phong thủy tốt – Vượng tài, vượng khí
Việt Quang Group – 096 1993 915 – luôn áp dụng nguyên tắc:
- Bố cục chuẩn
- Khí lưu thông
- Ánh sáng tự nhiên
- Gió luân chuyển
- Mảng xanh kích hoạt dương khí
- Mặt tiền cân đối
Nhờ đó, công trình của anh Sơn không chỉ đẹp mà còn mang lại:
- Tài lộc ổn định
- Công danh thuận lợi
- Gia đạo hòa thuận
- Sức khỏe tốt
- Năng lượng sống tích cực
Mẫu nhà phố 4 tầng 4x16m tại Quận 12 là một công trình vừa đẹp, vừa chuẩn kỹ thuật, lại đạt nhiều tiêu chí phong thủy quan trọng. Sự hòa hợp giữa ánh sáng – gió – cây xanh – hình khối kiến trúc đã giúp căn nhà sở hữu năng lượng sống rất tốt.
Nếu bạn cần một mẫu nhà đẹp – hợp phong thủy – chi phí tối ưu, hãy liên hệ Việt Quang Group để được tư vấn miễn phí.
Hotline: 096 1993 915








































































































































































