Với quỹ đất 5x14m tại khu vực Phường Phú Định – TP.HCM, bài toán đặt ra cho gia đình bà Lê Thủy Trúc không chỉ là xây một ngôi nhà để ở, mà là kiến tạo một không gian sống thoải mái, tiện nghi, dễ sử dụng lâu dài trong điều kiện đô thị ngày càng chật hẹp. Phương án nhà 1 trệt 1 lầu sân thượng do Việt Quang Group triển khai theo dịch vụ xây dựng nhà trọn gói đã giải quyết trọn vẹn những yêu cầu đó, cả về công năng lẫn thẩm mỹ.
Thông tin công trình
- Chủ đầu tư: Bà Lê Thủy Trúc
- Vị trí: Phường Phú Định – TP.HCM
- Quy mô: Nhà 1 trệt 1 lầu sân thượng
- Diện tích đất: 5x14m
- Dịch vụ: Xây dựng nhà trọn gói
Mặt tiền hiện đại, mềm mại và dễ thích nghi đô thị
Nhìn tổng thể phối cảnh, ngôi nhà mang phong cách hiện đại nhưng không khô cứng. Các mảng khối được xử lý gọn gàng, kết hợp đường cong nhẹ ở ban công và cửa sổ vòm tạo cảm giác thân thiện, gần gũi. Gam màu trung tính sáng giúp công trình “ăn gian” chiều rộng, đồng thời phản xạ ánh sáng tốt – một yếu tố rất quan trọng với nhà phố diện tích vừa và nhỏ.
Cổng và hàng rào thiết kế đơn giản, thông thoáng, đảm bảo an ninh nhưng không gây cảm giác bí bách. Đây là kiểu mặt tiền phù hợp lâu dài, không lỗi mốt, dễ nâng cấp hoặc cải tạo trong tương lai.
Công năng tầng trệt – ưu tiên sinh hoạt chung và sự thuận tiện
Tầng trệt được bố trí khoa học, hướng đến sự tiện lợi trong sinh hoạt hàng ngày. Từ cửa chính bước vào là không gian phòng khách, đủ rộng để tiếp khách, sinh hoạt gia đình mà vẫn giữ được sự thông thoáng. Cầu thang được đặt lệch gọn về một bên, giúp tối ưu diện tích sử dụng và tạo dòng lưu thông hợp lý.
Phía sau là khu bếp – ăn, bố trí liền mạch, thuận tiện nấu nướng và dùng bữa. Cách sắp xếp này giúp không gian luôn ấm cúng, gắn kết các thành viên trong gia đình. Nhà vệ sinh tầng trệt đặt cuối nhà, kín đáo nhưng dễ tiếp cận, rất phù hợp cho gia đình có người lớn tuổi.
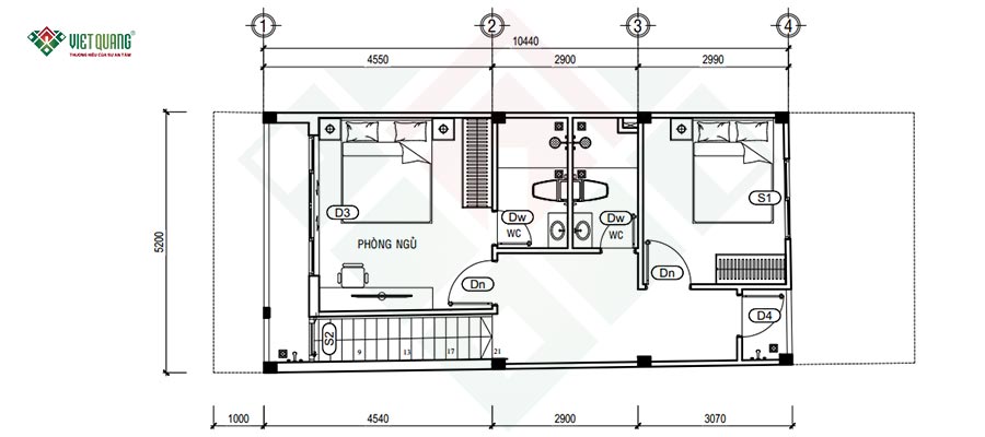
Không gian lầu 1 – riêng tư, yên tĩnh và đủ đầy
Lên lầu 1 là khu vực nghỉ ngơi chính của gia đình. Các phòng ngủ được bố trí hợp lý, đảm bảo thông thoáng tự nhiên nhờ hệ cửa sổ và giếng trời. Mỗi phòng đều có diện tích vừa đủ, dễ bài trí nội thất, mang lại cảm giác thoải mái khi sử dụng lâu dài.
Khu vệ sinh chung được đặt ở vị trí trung tâm, thuận tiện cho tất cả các phòng. Đây là cách bố trí rất “thực tế”, giúp giảm chi phí xây dựng, dễ bảo trì nhưng vẫn đảm bảo công năng sử dụng.
Giải pháp xây dựng trọn gói – an tâm từ đầu đến cuối
Toàn bộ công trình được Việt Quang Group triển khai theo hình thức xây dựng nhà trọn gói, từ tư vấn phương án, thiết kế, xin phép xây dựng cho đến thi công hoàn thiện. Quy trình rõ ràng, minh bạch giúp gia chủ tiết kiệm thời gian, kiểm soát tốt chi phí và hạn chế tối đa phát sinh.
Với kinh nghiệm thực tế nhiều công trình nhà phố tại TP.HCM, Việt Quang Group luôn ưu tiên giải pháp bền vững, vật liệu phù hợp ngân sách nhưng vẫn đảm bảo thẩm mỹ và độ bền lâu dài.
Nếu bạn đang tìm kiếm một giải pháp nhà phố gọn gàng, dễ ở, tối ưu chi phí nhưng vẫn đẹp và bền theo thời gian, đừng ngần ngại liên hệ Việt Quang Group – Hotline: 096 1993 915 để được tư vấn chi tiết và khảo sát thực tế.Việt Quang Group – Hotline: 096 1993 915 luôn sẵn sàng đồng hành cùng bạn trên hành trình xây dựng tổ ấm.























































































































































































