rong thiết kế nhà phố hiện đại, bản vẽ công năng luôn là xương sống của toàn bộ công trình. Một mặt tiền đẹp chỉ tạo ấn tượng ban đầu, nhưng một mặt bằng hợp lý mới tạo nên một ngôi nhà có thể sử dụng tốt, sống thoải mái, vận hành mượt mà suốt nhiều năm. Và mẫu nhà 3 tầng sân thượng 4x14m do Việt Quang Group thiết kế cho chị Liễu tại Bình Thạnh chính là một ví dụ điển hình cho sự kết hợp hoàn hảo giữa công năng – thẩm mỹ – kỹ thuật.
Với khu đất mặt tiền 4m và chiều sâu 14m, bài toán đặt ra cho kiến trúc sư là:
Làm sao để không gian nhỏ nhưng vẫn đầy đủ công năng, thoáng sáng, hợp phong thủy và phù hợp lối sống gia đình Việt?
1. Tổng quan tư duy thiết kế: Tối ưu trong giới hạn 4x14m
Nhà phố diện tích 4x14m thường gặp 3 vấn đề chính:
- Không gian dễ bị bí, thiếu ánh sáng
- Khó bố trí nhiều phòng ngủ
- Cầu thang chiếm diện tích nếu đặt không đúng chỗ
Việt Quang Group – hotline 096 1993 915 – giải quyết bài toán này bằng giải pháp bố trí cầu thang giữa nhà, chia công trình thành 2 khối trước – sau, từ đó:
- Tạo các khoảng thông tầng hợp lý
- Giảm cảm giác nhà ống dài và tối
- Phân chia chức năng rõ ràng
- Tối ưu lối đi, hạn chế diện tích chết
- Giải pháp này phù hợp tuyệt đối với nhà ngang 4m.
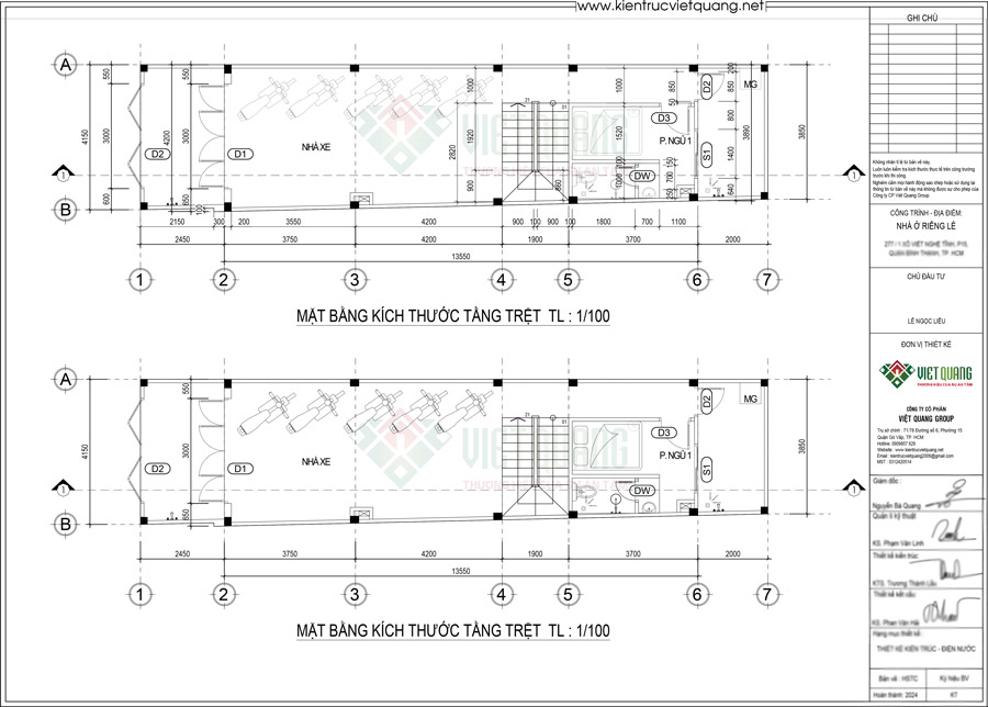
2. Phân tích mặt bằng trệt – Tối ưu đón sáng và sự kết nối
Bản vẽ tầng trệt cho thấy cách bố trí khoa học theo trình tự:
2.1. Khu vực trước nhà: cửa kính + diện tích để xe
- Với mặt tiền 4m, hệ cửa kính lớn được sử dụng nhằm:
- Tạo cảm giác rộng hơn
- Đưa ánh sáng tự nhiên vào sâu bên trong
- Tăng sự sang trọng cho mặt tiền
Đây là lựa chọn thông minh cho nhà phố hẹp ngang.
2.2. Nhà xe rộng – linh hoạt cho xe máy và xe đạp
Ngay sau cửa chính là khu nhà xe. Việc đặt nhà xe bên trong thay vì sân trước giúp:
- Tối đa hóa diện tích sử dụng
- Bảo vệ tài sản tốt hơn
- Che mưa – nắng hiệu quả
- Tạo khoảng đệm trước khi vào phòng khách hoặc khu sinh hoạt
2.3. Khu vực cầu thang giữa – “trục giao thông” của ngôi nhà
Cầu thang đặt giữa là giải pháp vàng trong nhà phố nhỏ:
- Điều phối giao thông thuận lợi
- Không chắn gió như cầu thang cuối nhà
- Tách không gian hợp lý: phía trước nhà xe – phía sau phòng ngủ/nhà bếp
- Tạo điểm lấy sáng tự nhiên thông qua ô giếng trời bên hông
- KTS của Việt Quang Group đã tận dụng triệt để đặc điểm này.
2.4. Phòng ngủ nhỏ phía sau – phù hợp người lớn tuổi hoặc khách
- Phòng ngủ bố trí cuối nhà giúp:
- Tạo sự yên tĩnh
- Tận dụng không gian vuông vức
- Đầy đủ WC riêng ngay cạnh
Đây là bố trí đúng chuẩn công năng nhà phố tại TP. HCM.
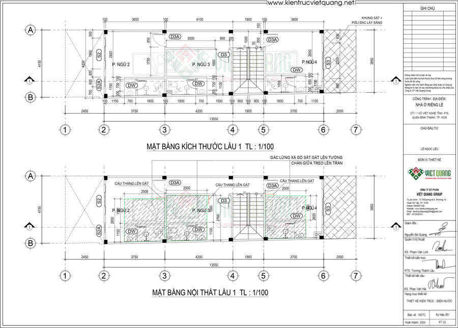
3. Phân tích mặt bằng lầu 1 – Tối ưu số lượng phòng ngủ
Lầu 1 được thiết kế theo dạng:
- 2 phòng ngủ rộng
- Cầu thang giữa
- WC riêng từng phòng
3.1. Phòng ngủ 2 và 3
- Phòng phía trước:
- Có cửa sổ lớn đón sáng
- Kết hợp lam che nắng
- Tầm nhìn tốt
- Phòng phía sau:
- Riêng tư
- Không bị ảnh hưởng tiếng ồn
3.2. Cách bố trí WC
WC đặt cạnh nhau theo trục thẳng đứng của nhà, mục tiêu:
- Tiết kiệm đường ống nước
- Dễ bảo trì
- Giảm chi phí thi công
Đây là một trong những “bí mật thiết kế” thường chỉ có các đơn vị chuyên nghiệp như Việt Quang Group mới hiểu sâu và áp dụng chuẩn chỉnh.
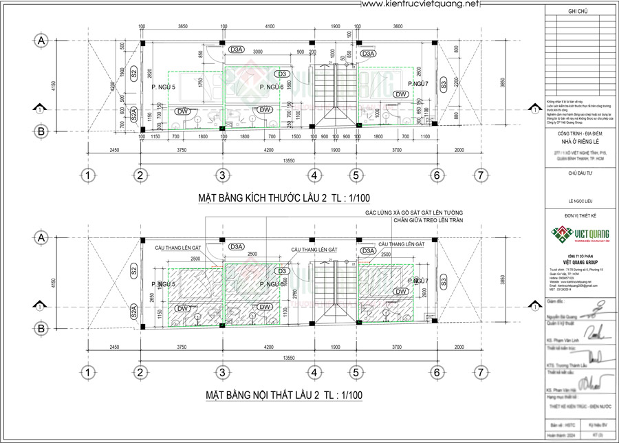
4. Phân tích mặt bằng lầu 2 – Nhân đôi công năng + tối ưu không gian
Lầu 2 cũng bố trí tương tự lầu 1 nhưng thay đổi theo nhu cầu thực tế của chị Liễu:
- Phòng ngủ 5
- Phòng ngủ 6
- Khu vệ sinh gọn
Sảnh thang thông thoáng
Việc nhân đôi công năng này giúp gia đình:
- Có thêm phòng cho con cái
- Dự phòng phòng cho khách
- Linh hoạt sử dụng theo thời gian
5. Phân tích tầng tum – Sự hòa hợp giữa thiên nhiên và công năng tâm linh
Ở tầng tum, Việt Quang Group dành không gian cho:
5.1. Phòng thờ
Phòng thờ đặt trên tầng cao nhất để:
- Tránh sự xáo trộn sinh hoạt
- Hợp phong thủy (cao – thoáng – tôn nghiêm)
- Đón gió và ánh sáng dịu nhẹ
5.2. Sân vườn & sân phơi
- Sân vườn phía trước là điểm nhấn lớn:
- Không gian thư giãn
- Trồng cây – uống trà – đọc sách
- Giúp nhà mát hơn
- Tạo mảng xanh đúng tiêu chuẩn kiến trúc hiện đại
Sân phơi phía sau nhà:
- Kín đáo
- Không ảnh hưởng thẩm mỹ
- Linh hoạt sử dụng
Đây là cách bố trí cực kỳ hợp lý cho nhà phố.
6. Chi tiết mái – giải pháp kỹ thuật đảm bảo độ bền
Ở phần mái, bản vẽ thể hiện đầy đủ các yếu tố:
- Mái bê tông cốt thép bền 50–70 năm
- Khu vực đặt bồn nước
- Đường thoát nước hợp lý
- Lối lên mái với cửa 900×1000 tiện thao tác
- Lan can mái cao 1,1m an toàn
- Hệ thống thoát nước mái được thiết kế theo chuẩn của Việt Quang Group, đảm bảo:
- Không đọng nước
- Không thấm – nứt
- Dễ bảo trì
Kỹ thuật mái là một trong những yếu tố quan trọng quyết định độ bền ngôi nhà.
7. Tổng thể công năng – Mẫu nhà 4x14m vận hành mượt, sống thoải mái
Nhìn tổng thể, mẫu nhà 3 tầng sân thượng 4x14m của chị Liễu có những ưu điểm nổi bật:
- Công năng đầy đủ: 5–6 phòng ngủ, 1 phòng thờ, sân thượng
- Bố trí khoa học theo trục đứng
- Cầu thang giữa tạo sự cân bằng
- Ánh sáng tự nhiên lan tỏa tốt
- Mỗi tầng đều có WC tiện nghi
- Tận dụng tối đa diện tích 14m chiều sâu
- Hệ thống kỹ thuật chuẩn và dễ bảo trì
Đây là mẫu nhà lý tưởng cho gia đình đông người hoặc gia đình có nhiều thế hệ cùng sinh sống.
8. Việt Quang Group – đơn vị thiết kế trọn gói uy tín tại Bình Thạnh
Với kinh nghiệm hơn 14 năm trong lĩnh vực thiết kế – xây dựng trọn gói, Việt Quang Group luôn cam kết:
- Thiết kế công năng tối ưu nhất
- Vật liệu chuẩn chất lượng
- Thi công đúng tiến độ
- Bảo hành – bảo trì rõ ràng
- Minh bạch chi phí
Hàng trăm khách hàng tại Bình Thạnh, Phú Nhuận, Tân Bình, Thủ Đức đã tin tưởng Việt Quang Group – hotline 096 1993 915 để xây dựng tổ ấm của mình.
Nếu bạn đang có nhu cầu thiết kế – thi công nhà phố 3 tầng, 4 tầng hoặc muốn tối ưu bản vẽ theo diện tích đất của mình, Việt Quang Group luôn sẵn sàng đồng hành.
























































































































































































