Trong thời điểm mật độ xây dựng ngày càng tăng tại TP. HCM, đặc biệt ở các quận nội thành như Tân Phú, nhu cầu sở hữu một ngôi nhà vừa đủ rộng – vừa đủ tiện nghi – lại tối ưu chi phí trở thành ưu tiên của rất nhiều gia đình. Mẫu nhà phố 4 tầng 1 lửng diện tích 5×17.5m dưới đây, do Việt Quang Group thiết kế, là một trong những phương án tối ưu nhất dành cho các gia đình có lô đất mặt tiền nhỏ nhưng muốn không gian sống rộng mở.
1. Tư duy thiết kế: Giải bài toán diện tích theo “chiều đứng”
Với mặt tiền 5m và chiều dài 17.5m, bài toán đặt ra là:
- Làm sao để không gian đủ rộng cho gia đình 3–5 thành viên?
- Làm sao để ngôi nhà thoáng – sáng – không bí bách?
- Làm sao để các phòng đều có ánh sáng tự nhiên?
- Và quan trọng hơn: kiến trúc phải đẹp – hiện đại – ít lỗi thời.
Kiến trúc sư Việt Quang Group chọn giải pháp phát triển không gian theo chiều đứng kết hợp tầng lửng, giúp:
- Tăng diện tích sử dụng lên đến 30%
- Tạo khoảng thông tầng giúp ngôi nhà thoáng gió
- Phân chia không gian hợp lý cho sinh hoạt
- Thiết kế mặt tiền đẹp mắt, không bị dốc hoặc nặng khối
Đây là giải pháp được rất nhiều hộ gia đình chọn khi xây nhà trọn gói tại các quận như Tân Phú, Tân Bình, Gò Vấp, Bình Thạnh…
2. Mặt tiền 4 tầng 1 lửng – tối giản nhưng hiện đại và bền vững
Nhìn tổng thể, công trình mang phong cách Modern Minimalist – hiện đại, thanh thoát, tối ưu chi tiết.
Điểm nhấn nổi bật:
Gạch ốp mặt tiền phối màu xanh pastel
Không quá rực, không quá lạnh – tạo cảm giác nhẹ nhàng, tươi mát, giúp căn nhà nổi bật mà vẫn tinh tế.
Hệ cửa nhôm Xingfa kết hợp kính cường lực
Giúp đón sáng lớn, tăng độ thoáng và mở rộng không gian thị giác – đặc biệt phù hợp với các lô đất hẹp.
Ban công dài và hệ cây xanh tối giản
Giúp mặt tiền mềm mại hơn, tăng hiệu ứng thẩm mỹ tự nhiên, đồng thời tạo thêm lớp lọc không khí.
Tầng trệt sử dụng gam màu tối
Tạo sự vững chãi ở phần đế nhà, đồng thời hạn chế bám bụi – điểm cộng lớn cho nhà phố.
Phong cách này mang tính “bền vững theo thời gian” – một điều mà nhiều gia chủ yêu thích khi chọn công ty xây dựng uy tín Việt Quang Group đồng hành trọn gói.
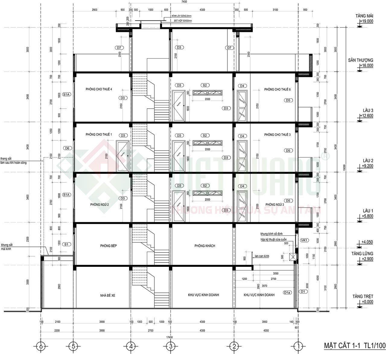
3. Thiết kế công năng – Tối ưu từng mét vuông sử dụng
Mặc dù diện tích đất không quá lớn, nhưng nhờ tư duy tổ chức mặt bằng khoa học, ngôi nhà đáp ứng đầy đủ công năng cho gia đình 4–6 người.
Tầng trệt – không gian sinh hoạt chính
- Phòng khách rộng thoáng
- Phòng bếp – ăn thiết kế liên thông
- Sân sau lấy sáng
- WC tầng trệt bố trí hợp lý
Không gian trệt được thiết kế cao và thoáng để tận dụng tối đa diện tích, tạo cảm giác rộng hơn thực tế.
Tầng lửng – tăng 30% diện tích mà không phá vỡ tổng thể
Tầng lửng là khu vực lý tưởng dành cho:
- phòng sinh hoạt chung,
- phòng làm việc,
- hoặc phòng giải trí gia đình.
Đây là giải pháp thiết kế được nhiều gia đình lựa chọn khi xây nhà phần thô, tiết kiệm chi phí nhưng tăng diện tích sử dụng đáng kể.
Lầu 1 & Lầu 2 – hệ phòng ngủ rộng rãi cho từng thành viên
Mỗi tầng gồm:
- 1 phòng ngủ lớn
- 1 WC khép kín
- Ban công + cửa lớn lấy sáng
Nhờ thiết kế cửa kính lớn, toàn bộ không gian phòng ngủ luôn thoáng mát, đón được nắng gió tự nhiên.
Sân thượng – không gian thư giãn lý tưởng
Sân thượng rộng rãi là nơi:
- trồng cây
- làm góc cà phê buổi sáng
- tổ chức tiệc BBQ
- hoặc phơi đồ tách biệt với không gian sống
Kiến trúc sư thiết kế lan can cao, chắc chắn – đảm bảo an toàn tuyệt đối cho gia đình.
4. Mẫu nhà 4 tầng 1 lửng 5×17.5m là lựa chọn hoàn hảo cho gia đình thành phố
Nếu bạn sở hữu lô đất mặt tiền hẹp và mong muốn:
- Nhà đẹp, hiện đại
- Nhiều phòng tiện nghi
- Có tầng lửng tăng diện tích
- Thông thoáng, nhiều ánh sáng
- Chi phí hợp lý
thì mẫu thiết kế này xứng đáng là sự lựa chọn hàng đầu.
Việt Quang Group tự hào là đơn vị mang đến những giải pháp kiến trúc – thi công tối ưu nhất cho hàng trăm gia đình mỗi năm.
- Tư vấn thiết kế & thi công: 096 1993 915
- Việt Quang Group – Thương hiệu của sự an tâm





























































































































































































